売家 はまもと 4,700万円
売家 はまもと
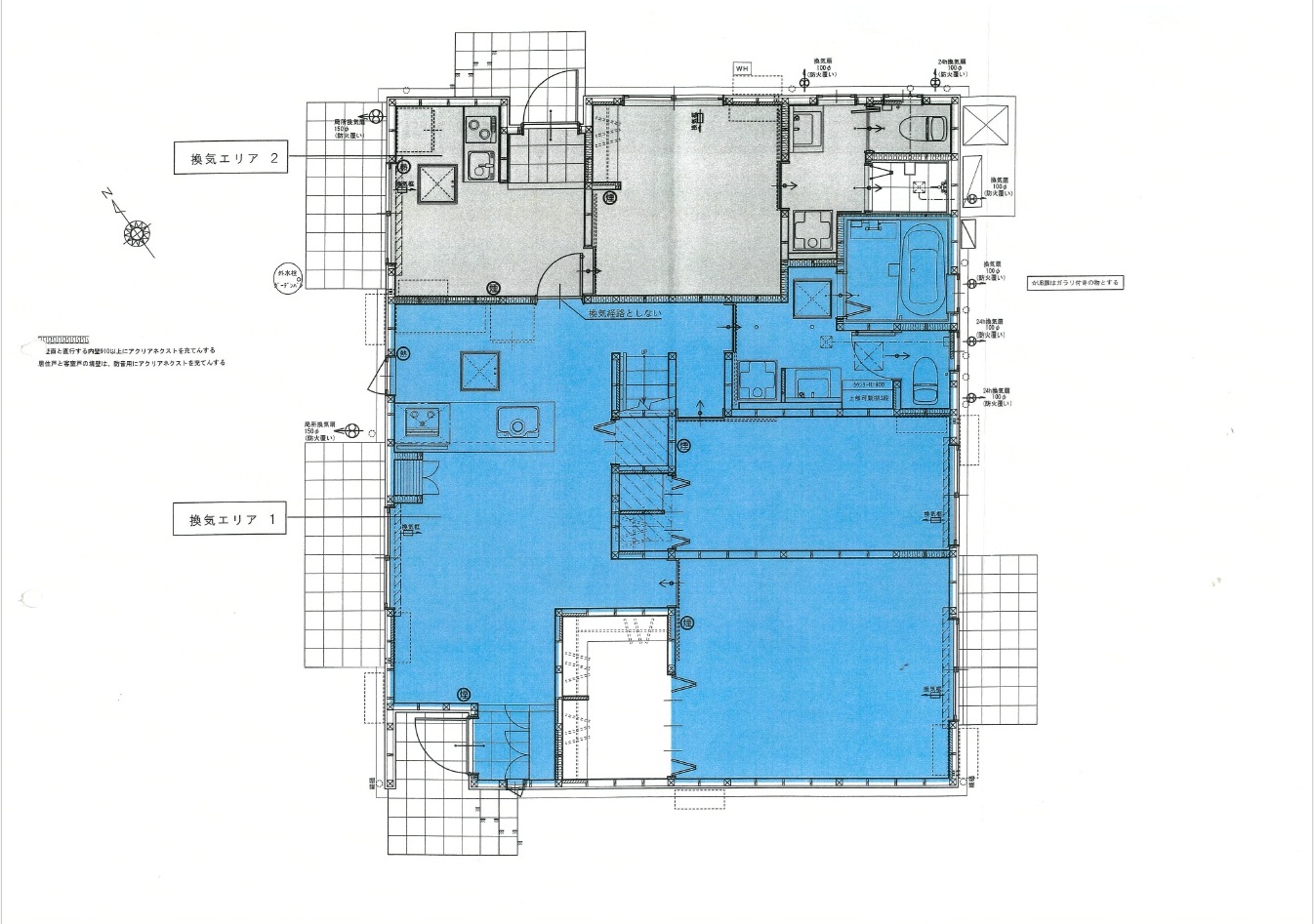
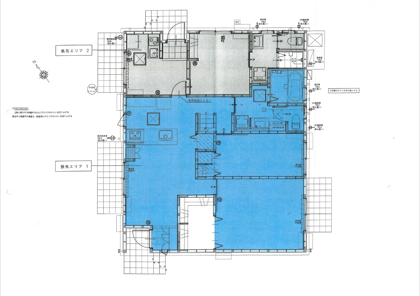
海見えます、2世帯造り、玄関2カ所、一カ所を宿として運営しています。瓦葺木造築令和2年新築
| 価 格 | 面 積 | 構造 | 物件種目 |
|---|---|---|---|
| 4,700万円 |
土地:554.07㎡(167.6坪) 建物:97.07㎡(29.36坪) |
木造かわらぶき造り | 土地建物 |
物件画像
物件情報
| 物件所在地 | 本部町浜元81番地 | 間取り2世帯 4LDK | 洋10帖・洋6.2帖・洋5帖・洋5.7 帖 14.8帖LDK テラス3ヶ所ロフト8帖 |
|---|---|---|---|
| 土地権利 | 所有権 | 地目 | 宅地 |
| 都市計画 | 非線引 | 用途地域 | 無指定 |
| 建蔽率 | 60% | 容積率 | 200% |
| 地勢 | 傾斜地 | 現況 | 所有者居住中 |
| 環境 | 周辺は住宅で静かな環境 | 引渡し | 応相談 |
| 設備 | 上水道・下水道あり (玄関、トイレ、浴室2カ所) IHコンロ・独立洗面所 ウオークインクローゼット |
駐車場 | 5台(並列と縦列) |
| 築年月 | 令和2年4月(築5年) | 取引形態 | 専任 |
| 周辺環境 | サンエーもとぶ食品館まで 車で5分(2km) かねひでもとぶ美ら海市場まで車で5分2.3km) ビッグもとぶ店まで車で6分(2.7km) 本部高校まで車で4分(1.5km) 本部町役場まで車で6分(2.2km) もとぶ野毛病院まで車で5分(2.2km) 美ら海水族館まで車で8分(3.7km) |
コメント | ※所有者居住中 物件内覧は予約をお願いいたします。 |
物件のお問合せ
| 電話からのお問合せ | TEL:0980-47-5900 | 営業時間 9:00~18:00 定休日:土曜日(午後)日曜日 |
|---|---|---|
| WEBからのお問合せ | お電話またはメールにてお気軽にお問合せ下さい。 土日・GW・夏季休業・年末年始は お休みをいただきます関係で返事が遅くなる場合がございます。また、ご質問の内容によりましてはお返事が遅くなる場合もございますので、申し訳ありませんが予めご了承下さい。 |










